Duizendschoonstraat 34A

Rotterdam

Koopprijs
€ 425.000,- k.k.

Omschrijving

WOONVISIE – Altijd in de buurt – te koop in Hillegersberg-Zuid

Charmant en stijlvol gerenoveerd driedubbel bovenhuis met (optionele) garage in het geliefde Kleiwegkwartier

In een van de leukste straten van het gewilde Kleiwegkwartier ligt dit karakteristieke en royaal opgezette driedubbele bovenhuis, compleet met een optioneel bij te kopen garage en voorgelegen terras op eigen grond. De woning bevindt zich in een rustige, groene en kindvriendelijke straat vol sfeervolle jaren ’30-architectuur – een buurt met karakter, waarin buren elkaar nog kennen en kinderen veilig buiten kunnen spelen.

Deze charmante bovenwoning, gelegen op de eerste, tweede en zolderverdieping, is in 2020 volledig gerenoveerd met oog voor detail en kwaliteit. Je treft er een moderne, luxe keuken, een smaakvol afgewerkte badkamer en een warme, stijlvolle uitstraling die perfect samengaat met originele elementen zoals glas-in-loodramen, een fraaie erker en paneeldeuren. De afwerking is hoogwaardig en instapklaar.

In 2025 is bovendien het volledige dak vernieuwd en geïsoleerd in opdracht van de VvE – een waardevolle investering die zorgt voor extra comfort én energie-efficiëntie.

Uniek in de stad: direct naast de woning bevindt zich een eigen garage met bijbehorend plaatsje, ideaal voor het parkeren van een auto of als extra bergruimte. Deze garage is optioneel bij te kopen voor een aanvullende koopsom van € 50.000,-. Daarmee biedt deze woning een zeldzame combinatie van ruimte, comfort en praktisch gemak.

P L U S P U N T E N
+ Fraaie afwerking
+ Gewilde woonomgeving
+ In 2020 intern gerenoveerd
+ in 2025 voorzien van nieuw dak
+ Twee fijne balkons
+ Volledig dubbelglas, vloer- en dakisolatie
+ Optioneel te koop met garage en bijbehorend voorgelegen terras (zeldzaam en zeer gewild)

B E Z I C H T I G E N
Plan je bezichtiging zelf in via Woonvisie.nl

L O C A T I E
Hillegersberg-Zuid, ook wel het Kleiwegkwartier genoemd, is stiekem een van de leukste wijken van de stad. En hoewel er winkels, cafés en restaurants in overvloed zijn, is het rustig wonen. Aan sportclubs, basis- en middelbare scholen is er in ieder geval geen gebrek. Sterker nog: er is zelfs een internationale school. Bovendien valt er op loopafstand van alles te beleven. Wat dacht je van varen op de Bergse Plassen, joggen langs de Rotte, een picknick in het Melanchtonpark of een balletje slaan op de golfbaan. En dat alles met Rotterdam Centrum op 10 minuten fietsen en Station Rotterdam Noord op 5 minuten lopen.

O N Z E F A V O R I E T E N
Ontbijten en lunchen doe je gezellig bij ‘Ver van Hier’. Voor een heerlijke maaltijd ga je naar eetcafé ‘De Gouden Snor’, restaurant ‘Rijntje’ of Thais restaurant ‘Yam Thai’. Als wijnliefhebber mag een bezoek aan een van de drie geweldige wijnbarren die de wijk rijk is niet ontbreken: ‘De Avonden’, ‘Abrazo’ of ‘Mendoza’, dat overigens een prachtig terras heeft aan de Bergse Voorplas. En afkoelen op een zomerse dag doe je bij De IJswinckel. Shop bij leuke boetiekjes zoals Merkwaardig en Little Department Store of vind rust en balans bij de lessen van Yogastudio Balanzs.

I N D E L I N G
Begane grond
Eigen voordeur en trapopgang naar de 1e verdieping.

1e verdieping
Overloop. Fraai betegeld toilet. De royale woonkamer ademt sfeer en karakter, met een extra breed zitgedeelte aan de voorzijde en een prachtige erker die zorgt voor veel lichtinval. Aan de achterzijde bevindt zich het eetgedeelte, dat dankzij de openslaande deuren direct in verbinding staat met het balkon. De sfeervolle keuken is opengebroken en beschikt over volledige SIEMENS inbouwapparatuur.

2e verdieping
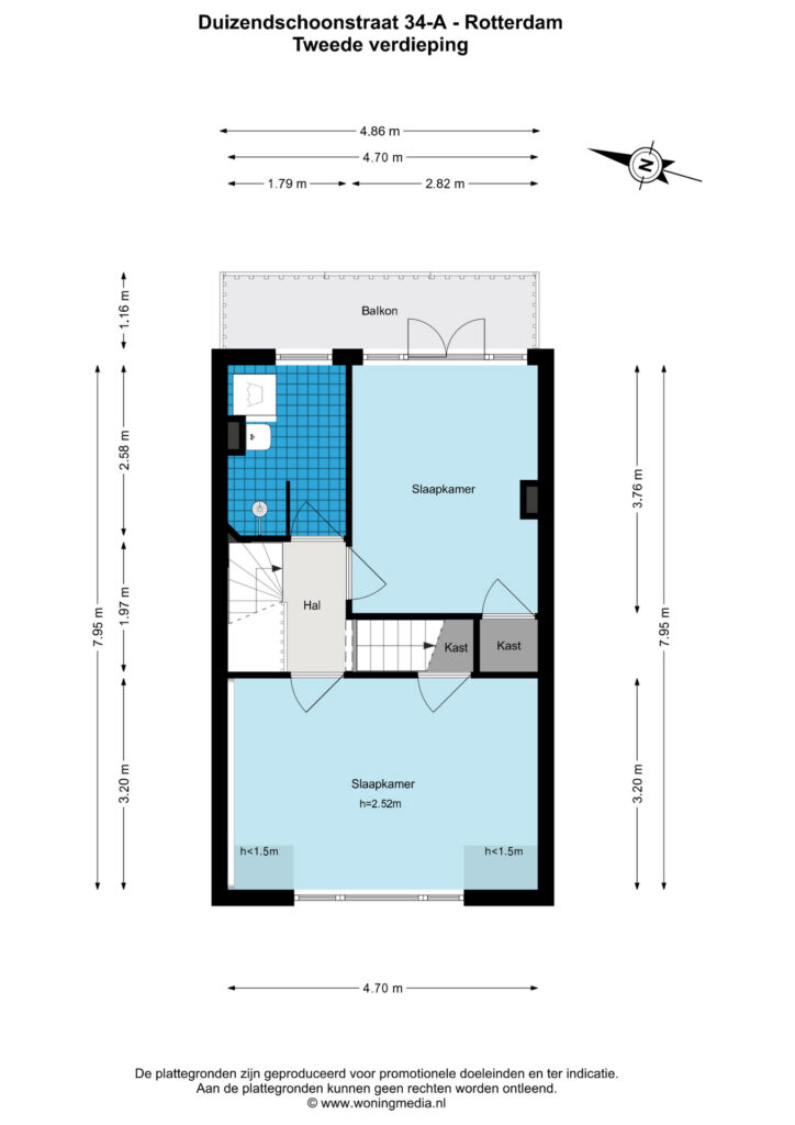
Overloop. Slaapkamer aan de achterzijde met een vaste kast en een deur naar het achtergelegen balkon. De moderne badkamer beschikt over een ruime inloopdouche, witgoedaansluiting en wastafelmeubel. Aan de voorzijde vinden we de tweede slaapkamer met opnieuw een vaste kast.

3e verdieping
Via een vaste trap bereikbaar treffen we hier de derde slaapkamer op de zolder etage. De zolder is voorzien van een dakkapel en is in 2025 geheel geïsoleerd.

Garage
Daarnaast is er de mogelijkheid om een aangrenzende, royale garage bij te kopen. Deze garage is ideaal voor extra bergruimte, klusprojecten of het veilig stallen van een auto of motor. De vraagprijs voor de garage bedraagt € 50.000,- k.k.

Zie de bijgevoegde plattegronden voor de maatvoering van deze prachtige woning.

B I J Z O N D E R H E D E N
• Bouwjaar 1933;
• Woonoppervlakte: circa 95 m²;
• Inhoud: circa 339 m³;
• Gezonde en actieve VvE met een maandelijkse bijdrage van € 201,-;
• Optionele garage (vraagprijs € 50.000,-);
• Energielabel C;
• Verwarming en warm water middels CV combiketel (2018);
• Dakisolatie;
• Ouderdomsclausule van toepassing;
• Positief funderingsrapport beschikbaar;
• Woning is gelegen op eigen grond;
• Oplevering in overleg.

D I S C L A I M E R
De Meetinstructie is gebaseerd op de NEN2580. De Meetinstructie is bedoeld om een meer eenduidige manier van meten toe te passen voor het geven van een indicatie van de gebruiksoppervlakte. De Meetinstructie sluit verschillen in meetuitkomsten niet volledig uit, door bijvoorbeeld interpretatieverschillen, afrondingen of beperkingen bij het uitvoeren van de meting.

Woonvisie Makelaars is de makelaar van de verkoper. Wij adviseren u uw eigen makelaar in te schakelen om uw belangen te behartigen bij de aankoop van dit object.

Alle verstrekte informatie moet beschouwd worden als een uitnodiging tot het doen van een bod of om in onderhandeling te treden. Er kunnen geen rechten worden ontleend aan deze woninginformatie.

Bezichtiging inplannen

Kenmerken

Status
Verkocht

Bouwjaar
1933
Soort
Bovenwoning
Kenmerk
Dubbel bovenhuis
Woonlaag
1
Aantal woonlagen
3
Aantal kamers
4
Aantal slaapkamers
3

Soorten verwarming
CV ketel
CV ketel type
HRE Inter Kompact type C13
CV ketel bouwjaar
2018
CV ketel brandstof
Gas
CV ketel eigendom
Eigendom
CV ketel combiketel
Ja
Soorten warm water
CV ketel
Energieklasse
C
Energielabel einddatum
3 juni 2035

Woonoppervlakte
95 m2
Perceel oppervlakte
26 m2
Inhoud
339 m3
Buitenruimtes gebouwgebonden of vrijstaand
9 m2

Aantal kamers
4
Aantal slaapkamers
3

Tuintypen
Plaats
Kwaliteit
Verzorgd
Totale oppervlakte
11 m2
Type
Plaats
Positie
Zuid
Lengte
330 mcm
Breedte
320 mcm
Oppervlakte
11 m2

new_image

Enthousiast over deze woning?

Bij Woonvisie Makelaars is het mogelijk om je bezichtiging zelf in te plannen!
Bezichtiging inplannen