Pretorialaan 109A

Rotterdam

Koopprijs
€ 595.000,- k.k.

Omschrijving

Wonen in topklasse: luxe dubbel benedenhuis (155m2) met terras en riante achtertuin (ca. 50 m2) op het Zuidwesten aan de levendige Pretorialaan op 250 meter afstand van het populaire Katendrecht.

Op zoek naar een woning die de charme van begin 1900 combineert met de kwaliteit van een nieuwbouwwoning? Deze uitzonderlijk hoogwaardige dubbel benedenwoning aan de Pretorialaan biedt het beste van twee werelden. Gelegen in een volledig gerenoveerd pand uit 1912, laat deze woning niets te wensen over – alles is met oog voor detail en op het hoogste niveau afgewerkt.

Vakmanschap tot in de kleinste details. Dit is geen standaard renovatie – hier is gekozen voor kwaliteit in elke vezel van het huis. De fundering, het dak, de gevels en alle kozijnen zijn volledig vernieuwd. Binnen is werkelijk alles aangepakt en opnieuw opgebouwd, met gebruik van luxe materialen, strakke lijnen en een feilloze afwerking. De living (ruim 60 m2) is ruim en sfeervol, met een op maat gemaakte open keuken en een volledig glazen pui aan de achterzijde die direct toegang geeft tot het terras. Een charmant opkamertje met originele glas-in-lood ramen voegt karakter toe. De badkamer doet denken aan een boutiquehotel, met hoogwaardige tegels, luxe sanitair en een tijdloze uitstraling.

De woning is uitstekend geïsoleerd en beschikt over energielabel A, hetgeen een zeldzaamheid is voor een woning van deze leeftijd. Hier woon je in een monumentaal jasje, maar met alle gemakken en energieprestaties van nu.

Afrikaanderwijk: op een kruispunt van verleden en toekomst. De ligging aan de Pretorialaan maakt het plaatje compleet. Je woont midden in de levendige Afrikaanderwijk, een wijk die zich in hoog tempo ontwikkelt tot een dynamisch stadsdeel met een sterke eigen identiteit. Nieuwe woonprojecten, creatieve hubs, horecazaakjes en lokale ondernemers geven de buurt een frisse energie. De bekende Afrikaandermarkt ligt letterlijk voor de deur, net als openbaar vervoer, scholen en culturele initiatieven. Vanaf volgend jaar kun je op loopafstand gaan genieten van het stadsstrand en een park bij het Rijnhaven gebied.

Op loopafstand ligt Katendrecht – hét voorbeeld van geslaagde stedelijke vernieuwing. Hier vind je het gezellige Deliplein vol met culinaire hotspots, de populaire Fenix Food Factory, het Nieuw Nederlands Fotomuseum en talloze plekken om te genieten van koffie, streetfood of fine dining.

Deze woning is geen compromis tussen oud en nieuw – het is een meesterlijke combinatie ervan. Stap binnen en ervaar het zelf.

P L U S P U N T E N
+ Volledig gerenoveerd in 2024/2025, dus instapklaar
+ Energielabel A
+ Tuin én terras
+ Uitstekende locatie

L O C A T I E
De Afrikaanderwijk in Rotterdam-Zuid is een levendige en diverse buurt die de afgelopen jaren een indrukwekkende transformatie heeft doorgemaakt. Waar de wijk ooit bekend stond als een traditionele volksbuurt, ontwikkelt zij zich nu tot een aantrekkelijke woonomgeving met een unieke mix van culturen, voorzieningen en stedelijke vernieuwing.

De wijk bruist van de lokale ondernemers die bijdragen aan de unieke sfeer. Cafés zoals Prêt à Boire en Koffiehandel Pretoria zijn populaire ontmoetingsplekken voor zowel bewoners als bezoekers. De Afrikaandermarkt, een van de grootste markten van Rotterdam, biedt twee keer per week een breed scala aan verse producten en exotische waren, wat de multiculturele identiteit van de wijk onderstreept.

De wijk maakt deel uit van grootschalige stedelijke vernieuwing, met plannen voor nieuwe woningen, scholen en openbare ruimtes. Deze ontwikkelingen zijn gericht op het creëren van een inclusieve en leefbare omgeving voor alle bewoners. De nabijheid van Katendrecht en de Rijnhaven, waar een nieuw stadsdeel met woningen en een park wordt gerealiseerd, verhoogt de aantrekkelijkheid van de Afrikaanderwijk als woonlocatie.

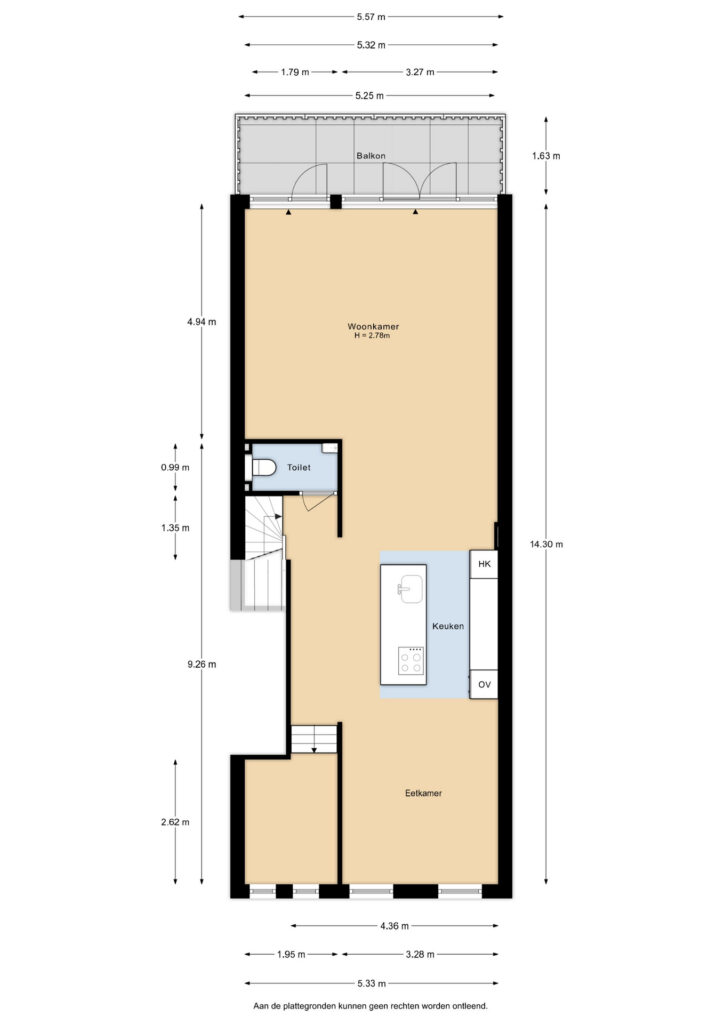
I N D E L I N G
Tweede verdieping:
Entree, hal, toilet, woonkamer met open keuken, met toegang tot het balkon aan de achterzijde. Tweetal slaapkamers achterzijde met een frans balkon, luxe badkamer met douche en wastafel. Berging met witgoedaansluiting.

Zie de bijgevoegde plattegrond voor de maatvoering van dit leuke appartement.

B I J Z O N D E R H E D E N
• Bouwjaar 1912;
• Woonoppervlakte: ca. 155 m²;
• Energielabel A;
• VvE is actief met een maandelijkse bijdrage van ca. € 135,-;
• Verwarming en warm water middels een CV-combiketel (2025);
• Oplevering per direct;
• Projectnotaris van toepassing;
• Woning is gelegen op eigen grond.

D I S C L A I M E R
De Meetinstructie is gebaseerd op de NEN2580. De Meetinstructie is bedoeld om een meer eenduidige manier van meten toe te passen voor het geven van een indicatie van de gebruiksoppervlakte. De Meetinstructie sluit verschillen in meetuitkomsten niet volledig uit, door bijvoorbeeld interpretatieverschillen, afrondingen of beperkingen bij het uitvoeren van de meting.

Woonvisie Makelaars is de makelaar van de verkoper. Wij adviseren u uw eigen makelaar in te schakelen om uw belangen te behartigen bij de aankoop van dit object. Alle verstrekte informatie moet beschouwd worden als een uitnodiging tot het doen van een bod of om in onderhandeling te treden. Er kunnen geen rechten worden ontleend aan deze woninginformatie.

Bezichtiging inplannen

Kenmerken

Status
Verkocht

Bouwjaar
1912
Soort
Benedenwoning
Kenmerk
Appartement
Woonlaag
1
Aantal woonlagen
2
Aantal kamers
5
Aantal slaapkamers
3

Soorten verwarming
CV ketel
CV ketel bouwjaar
2025
CV ketel brandstof
Gas
CV ketel eigendom
Eigendom
CV ketel combiketel
Ja
Soorten warm water
CV ketel
Energieklasse
A
Energielabel einddatum
25 april 2035

Woonoppervlakte
155 m2
Inhoud
523 m3
Buitenruimtes gebouwgebonden of vrijstaand
9 m2

Aantal kamers
5
Aantal slaapkamers
3

Tuintypen
Achtertuin
Kwaliteit
Fraai aangelegd
Type
Achtertuin
Positie
Zuidwest
Lengte
860 mcm
Breedte
570 mcm
Oppervlakte
49 m2

Plattegronden

new_image

Enthousiast over deze woning?

Bij Woonvisie Makelaars is het mogelijk om je bezichtiging zelf in te plannen!
Bezichtiging inplannen