Terbregseweg 67

Rotterdam

Koopprijs
€ 675.000,- k.k.

Omschrijving

Ben je op zoek naar een woning met ruimte, potentie én een bijzondere uitbreidingsmogelijkheid? Dan is deze hoekwoning aan de Terbregseweg 67 absoluut het bekijken waard. De woning is gebouwd in 1956 en beschikt over een voor en achtertuin, waardoor je hier fijn buiten kunt zitten en volop kunt genieten van de ruimte rondom het huis.

Wat deze woning extra interessant maakt, is de ligging in het groene en dorpse Terbregge. Je woont hier in een omgeving die bekendstaat om het water, de Rotte, de karakteristieke sfeer en de directe nabijheid van het Lage Bergse Bos en de Rottemeren. Een heerlijke plek voor wie graag wandelt, fietst of juist de rust van een groene woonomgeving zoekt, terwijl Rotterdam nog altijd goed bereikbaar is.

Intern verkeert de woning in eenvoudige staat, wat jou juist de kans biedt om het geheel naar eigen smaak en woonwensen te moderniseren. Het huidige perceel, exclusief de garage, is circa 180 m² groot. Daarnaast bestaat de unieke mogelijkheid om het naastgelegen perceel met garage van circa 200 m² erbij te kopen voor € 150.000, k.k. Daarmee creëer je extra buitenruimte, praktische bergruimte of een interessante investering voor de toekomst.

INDELING
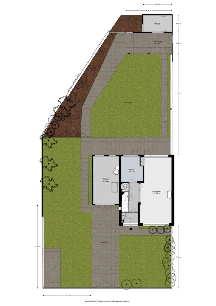
Begane grond:
Ruime entree met gang, meterkast en een toilet. Toegang tot de doorzon woonkamer. Afgesloten keuken met eenvoudige opstelling. De achtertuin biedt veel privacy.

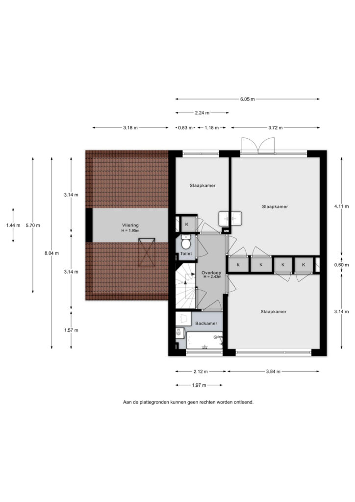
Eerste verdieping:
Overloop, toilet, drie slaapkamers en de badkamer met een ligbad.

Tweede verdieping:
Overloop met toegang tot de vierde en vijfde slaapkamer.

BIJZONDERHEDEN
– Bouwjaar 1956;
– Woonoppervlakte circa 132 m2;
– Inhoud circa 757 m3;
– Perceeloppervlakte circa 180 m2 eigen grond (dient nog te worden ingemeten);
– Naastgelegen perceel van circa 200 m2 inclusief garage is separaat te koop voor € 150.000,-
– Energielabel E;
– Oplevering in overleg.

De Meetinstructie is gebaseerd op de NEN2580. De Meetinstructie is bedoeld om een meer eenduidige manier van meten toe te passen voor het geven van een indicatie van de gebruiksoppervlakte. De Meetinstructie sluit verschillen in meetuitkomsten niet volledig uit, door bijvoorbeeld interpretatieverschillen, afrondingen of beperkingen bij het uitvoeren van de meting.

Alle verstrekte informatie moet beschouwd worden als een uitnodiging tot het doen van een bod of om in onderhandeling te treden. Er kunnen geen rechten worden ontleend aan deze woninginformatie.

Bezichtigen? Bel 010-218 02 80

Kenmerken

Status
Beschikbaar

Bouwjaar
1956
Soort
Eengezinswoning
Type
Eindwoning
Aantal kamers
6
Aantal slaapkamers
5

CV ketel combiketel
Nee
Energieklasse
E
Energielabel einddatum
24 december 2035

Woonoppervlakte
132 m2
Perceel oppervlakte
275 m2
Inhoud
575 m3
Buitenruimtes gebouwgebonden of vrijstaand
0 m2

Aantal kamers
6
Aantal slaapkamers
5

Tuintypen
Achtertuin, Voortuin
Kwaliteit
Normaal
Totale oppervlakte
125 m2
Type
Achtertuin
Positie
Noordoost
Lengte
1.483 mcm
Breedte
559 mcm
Oppervlakte
83 m2

new_image

Enthousiast over deze woning?

Bezichtigen? Bel 010-218 02 80