Grondherendijk 27A 02

Rotterdam

Koopprijs
€ 237.500,- k.k.

Omschrijving

WOONVISIE – Altijd in de buurt – te koop in Rotterdam Oud-Charlois

Charmant én instapklaar TOPAPPARTEMENT in karaktervolle straat met toekomstpotentie!

Wonen in een sfeervol en goed ingedeeld drie kamer appartement op de bovenste etage van een fraai jaren 30-pand? Dan is dit jouw kans! Deze recent gerenoveerde woning is gelegen in een uniek straatje vol karakteristieke pandjes met rijke historie. Hier geniet je van de charme van vroeger met het comfort van nu.

De woning is met zorg gemoderniseerd. De keuken en badkamer zijn vernieuwd, waarbij ook duurzaamheid niet uit het oog is verloren. Dat zie je terug in het energielabel B. Ideaal voor wie comfortabel én energiezuinig wil wonen.

Wat dit appartement extra bijzonder maakt, is de ligging op de bovenste verdieping. Hierdoor heb je niet alleen veel privacy en lichtinval, maar ook de unieke mogelijkheid om een dakterras te realiseren of zelfs een extra woonlaag toe te voegen. De buren hebben deze stap al gezet, dus de potentie ligt er al!

Met twee slaapkamers, een fijne indeling en een frisse uitstraling is dit een woning waar je zó in kunt. Tegelijk biedt het volop mogelijkheden om jouw woondromen verder vorm te geven.

Zelf ervaren hoe bijzonder dit appartement is? Plan dan direct online je bezichtiging via Woonvisie.nl!

P L U S P U N T E N
+ Direct te betrekken
+ Mogelijkheid voor dakterras
+ Mogelijkheid voor dakopbouw
+ Rustige ligging

L O C A T I E
In de directe omgeving vind je ideale voorzieningen zoals diverse winkelcentra, de tramhalte aan de Wolphaertsbocht, verschillende bushaltes en met de auto is er via de Dorpsweg een perfecte aansluiting op Rijksweg A15. Diverse scholen, Kinderboerderij De Molenwei, het Zuiderpark zijn in de buurt. Middels de Maastunnel is het stadscentrum te bereiken. Niet te vergeten: vlakbij is het grote overdekte winkelcentrum Zuidplein in het Hart van Zuid, het gebied van Rotterdam wat volop in ontwikkeling is en waar alle stadsfaciliteiten te vinden zijn!

O N Z E F A V O R I E T E N
Koffiedrinken doe je gezellig bij ‘Koffie en Ambacht’ op de Ebenhaezerstraat. Voor een heerlijke maaltijd en bijzondere ervaring ga je naar “Frobel op Zuid”, “Hof van Charlois”, “Brasserie Koriander” of “De Bonte Keukentafel”.

I N D E L I N G
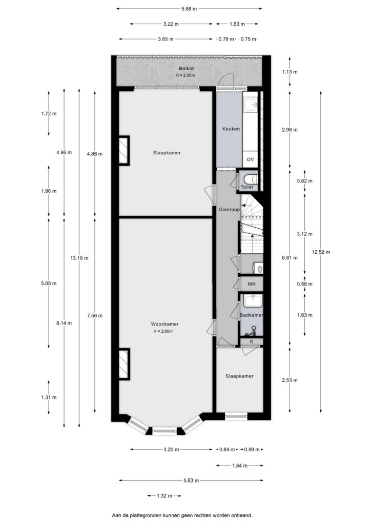
Begane grond: nette gezamenlijke entree, brievenbussen en trap naar tweede verdieping.

Tweede verdieping: hal met toilet en meterkast, ruime woonkamer met erker aan de voorzijde. Dichte keuken met nette opstelling. Twee slaapkamers en de badkamer. Het balkon is bereikbaar vanuit de keuken. Trap naar plat dak.

Zie de bijgevoegde plattegronden voor de maatvoering van dit leuke appartement.

B I J Z O N D E R H E D E N
• Bouwjaar 1930;
• Woonoppervlakte: ca. 70 m²;
• Energielabel B;
• Actieve VvE met maandelijkse bijdrage van ca. € 70,04;
• Verwarming en warm water middels c.v.-ketel;
• Vanwege verkoop door een belegger geen vragenlijst en lijst van zaken beschikbaar;
• Ouderdomsclausule van toepassing;
• Woning is gelegen op eigen grond.

D I S C L A I M E R
De Meetinstructie is gebaseerd op de NEN2580. De Meetinstructie is bedoeld om een meer eenduidige manier van meten toe te passen voor het geven van een indicatie van de gebruiksoppervlakte. De Meetinstructie sluit verschillen in meetuitkomsten niet volledig uit, door bijvoorbeeld interpretatieverschillen, afrondingen of beperkingen bij het uitvoeren van de meting.

Woonvisie Makelaars is de makelaar van de verkoper. Wij adviseren u uw eigen makelaar in te schakelen om uw belangen te behartigen bij de aankoop van dit object.

Alle verstrekte informatie moet beschouwd worden als een uitnodiging tot het doen van een bod of om in onderhandeling te treden. Er kunnen geen rechten worden ontleend aan deze woninginformatie.

Bezichtiging inplannen

Kenmerken

Status
Verkocht onder voorbehoud

Bouwjaar
1930
Soort
Bovenwoning
Kenmerk
Appartement
Woonlaag
2
Aantal woonlagen
1
Aantal kamers
3
Aantal slaapkamers
2

Soorten verwarming
CV ketel
CV ketel brandstof
Gas
CV ketel eigendom
Eigendom
CV ketel combiketel
Ja
Soorten warm water
CV ketel
Energieklasse
B
Energie index
1.3400000000
Energielabel einddatum
25 februari 2029

Woonoppervlakte
70 m2
Inhoud
252 m3
Buitenruimtes gebouwgebonden of vrijstaand
6 m2

Aantal kamers
3
Aantal slaapkamers
2

Tuintypen
Geen tuin

Plattegronden

new_image

Enthousiast over deze woning?

Bij Woonvisie Makelaars is het mogelijk om je bezichtiging zelf in te plannen!
Bezichtiging inplannen