Graaf Jan van Nassaustraat 15B

Rotterdam

Koopprijs
€ 325.000,- k.k.

Omschrijving

WOONVISIE – Altijd in de buurt – te koop in het Kleiwegkwartier

Charmant dubbel HOEK BOVENHUIS in Hillegersberg-Zuid.

Ben je op zoek naar een sfeervol en licht bovenhuis met een tweetal slaapkamers? Dan is dit dubbele bovenhuis, met een eigen entree op de begane grond, precies wat je zoekt!

Zodra je binnenstapt, valt de fijne lichtinval en het open karakter direct op. Op de eerste verdieping bevindt zich de ruime living, welke bestaat uit een zit- en eetgedeelte. De afgesloten keuken is praktisch ingericht en biedt volop ruimte om uitgebreid te koken.

De zolderverdieping is efficient ingedeeld met een ruime overloop met witgoedaansluiting en een tweetal ruime slaapkamers. Aangrenzend ligt de nette badkamer, voorzien van een douche en een wastafel.

De ligging in Hillegersberg-Zuid is perfect: groen, rustig en toch vlak bij winkels, OV en uitvalswegen. Ideaal voor starters of singles die op zoek zijn naar een zorgeloze woonplek in een geliefde buurt.

Zelf ervaren hoe fijn het hier woont? Plan direct je bezichtiging via Woonvisie.nl.

P L U S P U N T E N
+ Veel daglicht dankzij de hoekligging
+ Instapklaar en direct te betrekken
+ Ligging in het rustige gedeelte van het Kleiwegkwartier

L O C A T I E
Hillegersberg-Zuid, ook wel het Kleiwegkwartier genoemd, is stiekem een van de leukste wijken van de stad. En hoewel er winkels, cafés en restaurants in overvloed zijn, is het rustig wonen. Aan sportclubs, basis- en middelbare scholen is er in ieder geval geen gebrek. Sterker nog: er is zelfs een internationale school. Bovendien valt er op loopafstand van alles te beleven. Wat dacht je van varen op de Bergse Plassen, joggen langs de Rotte, een picknick in het Melanchtonpark of een balletje slaan op de golfbaan. En dat alles met Rotterdam Centrum op 10 minuten fietsen en Station Rotterdam Noord op 5 minuten lopen.

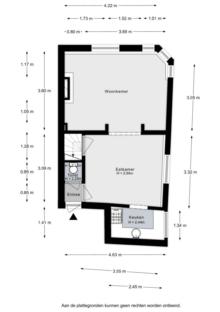
I N D E L I N G
Begane grond:
Entree, trap naar eerste etage

eerste verdieping:
Hal, separaat toilet. Keuken met nette opstelling. Woonkamer bestaande uit een tweetal kamers.

Tweede verdieping:
Overloop, tweetal slaapkamers, badkamer met douche en wastafel.

Zie de bijgevoegde plattegronden voor de maatvoering van deze leuke bovenwoning.

B I J Z O N D E R H E D E N
• Bouwjaar 1921;
• Woonoppervlakte: ca. 71m²;
• Energielabel G;
• Maandelijkse bijdrage VvE: circa € 60,-
• Verwarming en warm water middels C.V. combiketel;
• Ouderdoms-, asbest en niet bewonersclausule van toepassing;
• Er is een projectnotaris van toepassing;
• Er is geen vragenlijst en lijst van zaken beschikbaar (wegens verkoop door belegger);
• Woning is gelegen op eigen grond.
• Oplevering per direct

D I S C L A I M E R
De Meetinstructie is gebaseerd op de NEN2580. De Meetinstructie is bedoeld om een meer eenduidige manier van meten toe te passen voor het geven van een indicatie van de gebruiksoppervlakte. De Meetinstructie sluit verschillen in meetuitkomsten niet volledig uit, door bijvoorbeeld interpretatieverschillen, afrondingen of beperkingen bij het uitvoeren van de meting.

Woonvisie Makelaars is de makelaar van de verkoper. Wij adviseren u uw eigen makelaar in te schakelen om uw belangen te behartigen bij de aankoop van dit object.

Alle verstrekte informatie moet beschouwd worden als een uitnodiging tot het doen van een bod of om in onderhandeling te treden. Er kunnen geen rechten worden ontleend aan deze woninginformatie.

Bezichtiging inplannen

Kenmerken

Status
Beschikbaar

Bouwjaar
1921
Soort
Bovenwoning
Kenmerk
Dubbel bovenhuis
Woonlaag
2
Aantal woonlagen
2
Aantal kamers
4
Aantal slaapkamers
2

Soorten verwarming
CV ketel
CV ketel brandstof
Gas
CV ketel eigendom
Eigendom
CV ketel combiketel
Ja
Soorten warm water
CV ketel
Energieklasse
G
Energie index
3.0700000000
Energielabel einddatum
27 juli 2026

Woonoppervlakte
71 m2
Perceel oppervlakte
174 m2
Inhoud
244 m3
Buitenruimtes gebouwgebonden of vrijstaand
0 m2

Aantal kamers
4
Aantal slaapkamers
2

Tuintypen
Geen tuin

Plattegronden

new_image

Enthousiast over deze woning?

Bij Woonvisie Makelaars is het mogelijk om je bezichtiging zelf in te plannen!
Bezichtiging inplannen