Peppelweg 90C

Rotterdam

Koopprijs
€ 295.000,- k.k.

Omschrijving

Heerlijk twee, voormalig drie kamer appartement aan de gezellige winkelstraat van Schiebroek. Bij binnenkomst in het appartement valt direct de hoeveelheid daglicht op, door de grote raampartijen. De keuken aan de voorzijde van de woning met toegang tot het balkon heeft uitzicht op het bruisende marktplein. Aan de achterzijde bevindt zich de slaapkamer met toegang tot het balkon op het zuidwesten uitkijkend op de groene binnenplaats.

Schiebroek kenmerkt zich door de groene en rustige omgeving en wordt omringd door verschillende parken en het ligt vlakbij Hillegersberg. Het Schiebroeksepark, waar Schotse Hooglanders los rondlopen en vleermuizen zijn te spotten, is op loopafstand te bereiken. Ook het Wilgenplaspark, Meidoornweide, Berg- en Broekpark en Plaswijckpark vind je in de nabije omgeving. Dit zorgt ervoor dat ontspanning en recreëren zeer goed mogelijk is. Daarnaast is er een divers en ruim aanbod op het gebied van winkelen, eetgelegenheden en kan je elke vrijdag de plaatselijke markt bezoeken. De Peppelweg met leuke winkels (het gezellige centrum van Schiebroek) en de winkelstraat Bergse Dorpsstraat in Hillegersberg zijn eenvoudig te bereiken. Andere voorzieningen zoals scholen, sportverenigingen, het openbaar vervoer (tram-en busverbinding) en de uitvalswegen (A13 en A20) bevinden zich in de directe omgeving. Een bijkomend pluspunt is dat de RandstadRail zowel de binnenstad van Rotterdam als Den Haag dichtbij brengt. Een ontspannen en centrale ligging in één!

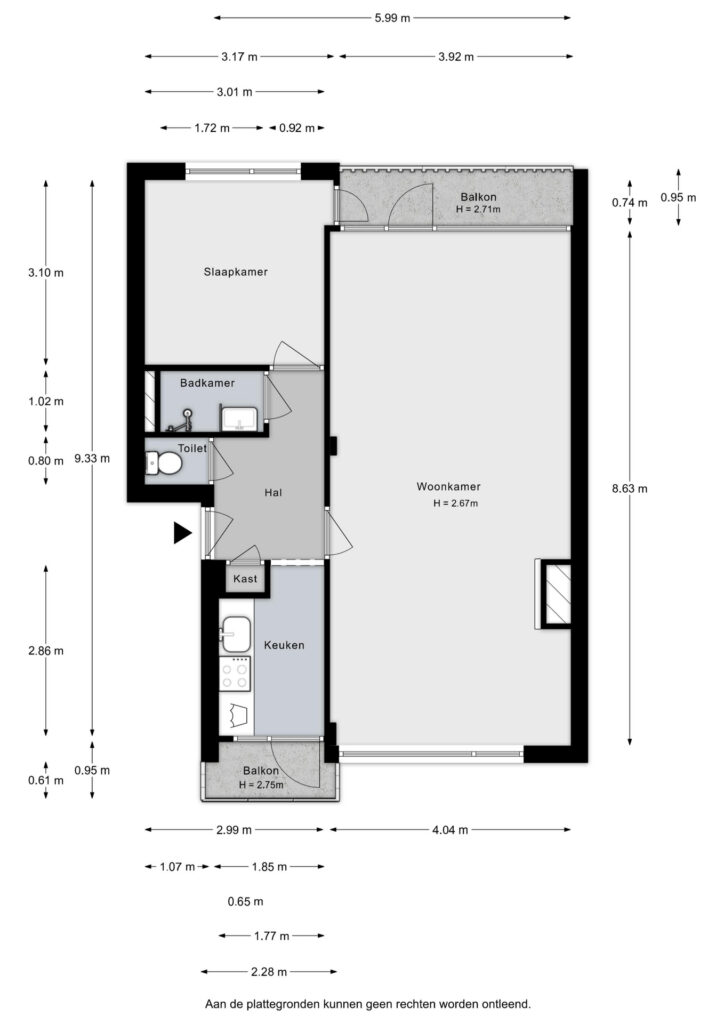
Indeling
Begane grond:
Afgesloten centrale entreehal met toegang tot trappenhuis en bergingen.

2e verdieping:
– entree woning;
– hal met separaat toilet;
– keuken aan de voorzijde van de woning met toegang tot het balkon
– lichte woonkamer met doorzon en toegang tot het balkon op het zuidwesten;
– slaapkamer met inbouwkast tevens met toegang het balkon op het zuidwesten;
– eenvoudige badkamer, voorzien van douche en wastafel.

Zie de bijgevoegde plattegronden voor de maatvoering van dit leuke appartement!

Bijzonderheden:
– Bouwjaar 1955;
– Woning is gelegen op eigen grond;
– Woonoppervlakte: ca. 58 m² ;
– Berging in de onderbouw ca. 5m²;
– Inhoud ca. 192 m³
– Actieve VvE met maandelijkse bijdrage van ca. € 232,36;
– Verwarming middels CV-combiketel;
– Energielabel C;
– Oplevering per direct;
– Er is geen vragenlijst en lijst van zaken beschikbaar;
– Ouderdoms- en niet-zelf-bewoning clausule van toepassing;
– Projectnotaris van toepassing.

De Meetinstructie is gebaseerd op de NEN2580. De Meetinstructie is bedoeld om een meer eenduidige manier van meten toe te passen voor het geven van een indicatie van de gebruiksoppervlakte. De Meetinstructie sluit verschillen in meetuitkomsten niet volledig uit, door bijvoorbeeld interpretatieverschillen, afrondingen of beperkingen bij het uitvoeren van de meting.

Woonvisie Makelaars is de makelaar van de verkoper. Wij adviseren u uw eigen VBO-makelaar in te schakelen om uw belangen te behartigen bij de aankoop van dit object.

Alle verstrekte informatie moet beschouwd worden als een uitnodiging tot het doen van een bod of om in onderhandeling te treden. Er kunnen geen rechten worden ontleend aan deze woninginformatie.

Bezichtigen? Bel 010-218 02 80

Kenmerken

Status
Beschikbaar

Bouwjaar
1955
Soort
Portiekflat
Kenmerk
Appartement
Woonlaag
2
Aantal woonlagen
1
Aantal kamers
2
Aantal slaapkamers
1

Soorten verwarming
CV ketel
CV ketel combiketel
Nee
Soorten warm water
CV ketel
Energieklasse
C
Energielabel einddatum
11 maart 2036

Woonoppervlakte
58 m2
Inhoud
192 m3
Buitenruimtes gebouwgebonden of vrijstaand
6 m2

Aantal kamers
2
Aantal slaapkamers
1

Tuintypen
Geen tuin

Plattegronden

new_image

Enthousiast over deze woning?

Bezichtigen? Bel 010-218 02 80