Maaskade 79BG

Rotterdam

Koopprijs
€ 475.000,- k.k.

Omschrijving

Wonen op het Noordereiland met uitzicht op de Maas – karakteristiek dubbel benedenhuis met tuin aan de Maaskade

Aan de iconische Maaskade, op het charmante en rustige Noordereiland, bieden wij dit unieke dubbele benedenhuis aan in een statig pand uit 1885. Met de slaapkamers op de begane grond, de living met keuken op de eerste etage én een grote nog nader te bestemmen kelderruimte, is dit een woning vol mogelijkheden. En dan dat uitzicht… letterlijk op de eerste rij!

Laat je verrassen door de potentie van dit bijzondere huis op een van de mooiste plekken van Rotterdam. Bel of mail ons voor een bezichtiging – we laten het je graag zien.

P L U S P U N T E N
+ Originele details
+ Onderdeel van een fraai pand op een geweldige locatie
+ Tuin én veranda aan de rustige achterzijde
+ Unieke ligging aan de Maaskade met zicht op de Maas
+ Woning dient gemoderniseerd te worden – de perfecte kans om je eigen stempel te drukken

L O C A T I E
Het Noordereiland is een van de best bewaarde geheimen van Rotterdam: een dorp in de stad, omringd door water en verbonden met de stad via de Willemsbrug en de Koninginnebrug. De Maaskade is een geliefde plek onder Rotterdammers vanwege de rust, de historie én het spectaculaire uitzicht over de Maas en de skyline. Hier woon je in alle rust, maar met het bruisende stadscentrum op loop- of fietsafstand.

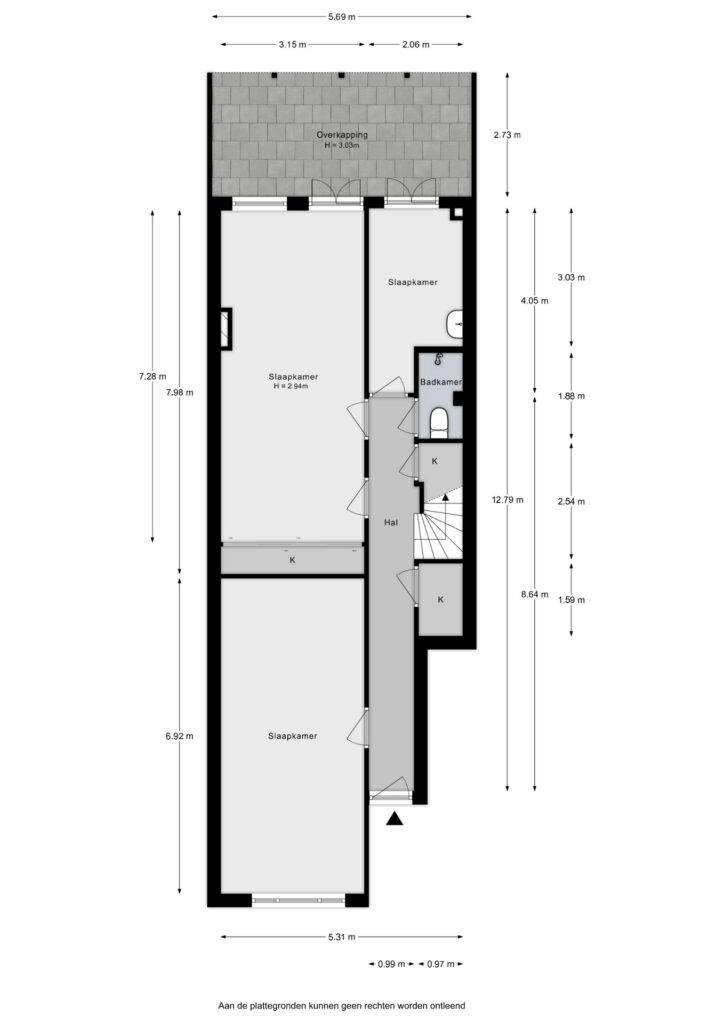
I N D E L I N G
Begane grond
Eigen entree, vaste kasten, eerste badkamer met douche en toilet, drietal slaapkamers, veranda en achtertuin op het Zuidoosten.

Eerste verdieping
Overloop, toilet, tweede badkamer aan de achterzijde, vierde slaapkamer achterzijde met toegang tot het balkon. Woonkamer met fraai ornamenten plafond, een open keuken en toegang tot het tweede balkon aan de voorzijde met een geweldig uitzicht.

Souterrain
Naar eigen wens in te delen. Overige ruimte.

Zie de bijgevoegde plattegronden voor de maatvoering van dit ruime appartement.

B I J Z O N D E R H E D E N
• Bouwjaar 1885;
• Woonoppervlakte: ca. 151 m² (conform meetstaat en exclusief kelder);
• Inhoud ca. 564 m³;
• Energielabel D;
• Oplevering in overleg;
• De VvE is actief met een bijdrage van circa € 160,73;
• Ouderdoms- en niet bewonersclausule van toepassing;
• Er is een projectnotaris van toepassing;
• Er is geen vragenlijst en lijst van zaken beschikbaar (wegens verkoop door belegger);
• Woning is gelegen op eigen grond.

D I S C L A I M E R
De Meetinstructie is gebaseerd op de NEN2580. De Meetinstructie is bedoeld om een meer eenduidige manier van meten toe te passen voor het geven van een indicatie van de gebruiksoppervlakte. De Meetinstructie sluit verschillen in meetuitkomsten niet volledig uit, door bijvoorbeeld interpretatieverschillen, afrondingen of beperkingen bij het uitvoeren van de meting.

Woonvisie Makelaars is de makelaar van de verkoper. Wij adviseren u uw eigen makelaar in te schakelen om uw belangen te behartigen bij de aankoop van dit object. Alle verstrekte informatie moet beschouwd worden als een uitnodiging tot het doen van een bod of om in onderhandeling te treden. Er kunnen geen rechten worden ontleend aan deze woninginformatie.

Bezichtiging inplannen

Kenmerken

Status
Verkocht onder voorbehoud

Bouwjaar
1885
Soort
Benedenwoning
Kenmerk
Appartement
Woonlaag
1
Aantal woonlagen
2
Aantal kamers
5
Aantal slaapkamers
4

Soorten verwarming
CV ketel
CV ketel combiketel
Nee
Soorten warm water
CV ketel
Energieklasse
D
Energielabel einddatum
23 augustus 2031

Woonoppervlakte
151 m2
Perceel oppervlakte
141 m2
Inhoud
564 m3
Buitenruimtes gebouwgebonden of vrijstaand
24 m2

Aantal kamers
5
Aantal slaapkamers
4

Tuintypen
Achtertuin
Kwaliteit
Aan te leggen
Type
Achtertuin
Positie
Zuidoost
Lengte
970 mcm
Breedte
569 mcm
Oppervlakte
55 m2

Plattegronden

new_image

Enthousiast over deze woning?

Bij Woonvisie Makelaars is het mogelijk om je bezichtiging zelf in te plannen!
Bezichtiging inplannen