Vlaggemanstraat 3B

Rotterdam

Koopprijs
€ 450.000,- k.k.

Omschrijving

Sfeervol en licht dubbel benedenhuis met stadstuin in het geliefde Bergpolder

Welkom aan de Vlaggemanstraat! Op een van de mooiste en meest karaktervolle plekken van Rotterdam Bergpolder, aan een ruim opgezet plein met fraaie jaren ’20-bebouwing, ligt dit unieke dubbele benedenhuis. Hier woon je rustig en groen, maar met de bruisende stad letterlijk om de hoek.

De woning ligt op steenworp afstand van de Hofbogen, een iconisch voormalig spoorviaduct dat de afgelopen jaren is getransformeerd tot een levendige hotspot. Langs de bogen vind je creatieve ondernemers, boetiekjes, ateliers en uitstekende horecazaken. Ook wordt er hard gewerkt aan het Hofbogenpark, een uniek stadspark op het dak van het oude spoortraject dat straks als een groene loper van noord naar het centrum slingert. Een fantastische plek om te wandelen, sporten of gewoon van het uitzicht over de stad te genieten.

Op loopafstand ligt bovendien het oude station Bergweg, waar je tegenwoordig terecht kunt voor een drankje of diner op het gezellige terras. Dit terras is een geliefde ontmoetingsplek voor buurtbewoners en geeft de wijk een bijzondere, bijna dorpse sfeer.

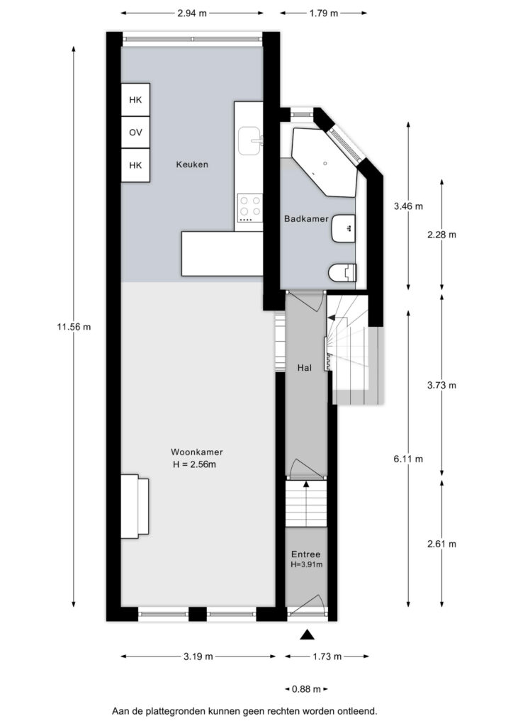
De woning zelf is verdeeld over een beletage en een souterrain. Op de beletage vind je een ruime, lichte living van ruim 35 m², waar de woonkamer en de in 2022 vernieuwde keuken zijn samengevoegd tot één heerlijke open ruimte. Dankzij het grote schuifraam aan de achterzijde haal je buiten naar binnen en geniet je volop van het groen.

In het souterrain is het zomers heerlijk koel. Hier stap je zo de beschutte stadstuin in, waar je in alle privacy kunt ontspannen en de vogels hoort fluiten — een oase van rust midden in de stad.

Met drie ruime slaapkamers is dit huis ideaal voor gezinnen, stellen of thuiswerkers die extra ruimte zoeken.

Ben je op zoek naar een karaktervol benedenhuis op een van de meest geliefde plekken van Rotterdam, met een mix van stadse energie en groene rust? Dan is dit je kans. Kom het zelf beleven!

INDELING
Begane grond:
– entree woning, hal met hoog plafond (ideaal om fiets op te hangen) en een trappetje naar de betetage;
– ruime en lichte woonkamer, met een open en luxe keukenopstelling;
– badkamer aan de achterzijde, met ligbad, toilet en wastafel.

Souterrain:
– overloop met tweede wc;
– ruime slaapkamer aan de voorzijde met vaste kasten;
– tweede slaapkamer aan de achterzijde van de woning met inloopkast en toegang tot de achtertuin;
– derde slaapkamer annex werkkamer aan de achterzijde;
– berging met witgoedopstelling.

Zie de bijgevoegde plattegronden voor de maatvoering van dit leuke appartement!

Bijzonderheden:
– Bouwjaar 1925;
– Woonoppervlakte: ca. 99 m² (conform NEN2580);
– Inhoud ca. 326 m³
– Energielabel C;
– Beschermd stadsgezicht;
– Oplevering in overleg;
– Actieve VvE met maandelijkse bijdrage van ca. € 86,- ;
– Voorzien van kunststof en houten kozijnen met dubbele beglazing;
– Verwarming en warm water middels cv ketel (2019);
– Ouderdomsclausule van toepassing;
– Woning is gelegen op eigen grond.

De Meetinstructie is gebaseerd op de NEN2580. De Meetinstructie is bedoeld om een meer eenduidige manier van meten toe te passen voor het geven van een indicatie van de gebruiksoppervlakte. De Meetinstructie sluit verschillen in meetuitkomsten niet volledig uit, door bijvoorbeeld interpretatieverschillen, afrondingen of beperkingen bij het uitvoeren van de meting. Koper wordt in de gelegenheid gesteld de meting te controleren. In de koopakte zal een artikel worden opgenomen waarin koper de verkoper vrijwaart inzake eventuele afwijkingen van de meetstaat.

Woonvisie Makelaars is de makelaar van de verkoper. Wij adviseren u uw eigen makelaar in te schakelen om uw belangen te behartigen bij de aankoop van dit object.

Alle verstrekte informatie moet beschouwd worden als een uitnodiging tot het doen van een bod of om in onderhandeling te treden. Er kunnen geen rechten worden ontleend aan deze woninginformatie.

Bezichtiging inplannen

Kenmerken

Status
Verkocht

Bouwjaar
1925
Soort
Benedenwoning
Kenmerk
Appartement
Woonlaag
1
Aantal woonlagen
2
Aantal kamers
4
Aantal slaapkamers
3

Soorten verwarming
CV ketel
CV ketel type
Remeha
CV ketel bouwjaar
2019
CV ketel brandstof
Gas
CV ketel eigendom
Eigendom
CV ketel combiketel
Ja
Soorten warm water
CV ketel
Energieklasse
C
Energielabel einddatum
23 maart 2032

Woonoppervlakte
100 m2
Inhoud
326 m3
Buitenruimtes gebouwgebonden of vrijstaand
0 m2

Aantal kamers
4
Aantal slaapkamers
3

Tuintypen
Achtertuin
Kwaliteit
Normaal
Type
Achtertuin
Positie
Noordwest
Lengte
550 mcm
Breedte
450 mcm
Oppervlakte
25 m2

Plattegronden

new_image

Enthousiast over deze woning?

Bij Woonvisie Makelaars is het mogelijk om je bezichtiging zelf in te plannen!
Bezichtiging inplannen