Mathenesserlaan 137-01

Rotterdam

Koopprijs
€ 450.000,- k.k.

Omschrijving

WOONVISIE – Altijd in de buurt – te koop in het Oude Westen

Sfeervol en karaktervol wonen aan de geliefde Mathenesserlaan!

In de breedte gebouwd en karakteristiek appartement van maar liefst 122 m2 gelegen op de eerste verdieping. De ligging is uitstekend in een fraai complex aan de zeer populaire Mathenesserlaan op steenworp afstand van het Museumpark, Kunsthal en het Boijmans van Beuningen museum. Maar ook de horeca is in de directe omgeving ruim aanwezig.

De woning is in de breedte gebouwd en dat zie je terug in de royale maatvoering en prettige lichtinval. Aan de voorzijde zijn de balkons recent vervangen door de zeer actieve VvE.

Benieuwd geworden? Plan zelf eenvoudig een bezichtiging via onze website Woonvisie.nl en ervaar deze woning van binnen.

P L U S P U N T E N
+ Maar liefst 122 m2 woonoppervlakte
+ Geweldige locatie
+ Berging in de onderbouw

L O C A T I E
Van een oude polder met weilanden naar een zeer populaire stadswijk. Het Oude Westen/Middelland heeft statige huizen aan mooie lanen en singels, maar ook woningen in rustige achterliggende straatjes. Wat deze wijk zo populair maakt is de diversiteit aan nationaliteiten wat zorgt voor een grote variatie op zowel cultureel- als culinair gebied. Zo is er op elke hoek van de straat wel een lekkere exotische maaltijd en een goede kop koffie te scoren. Op de bekende winkelstraten Oude Binnenweg en Nieuwe Binnenweg vestigen zich steeds meer trendy winkels en restaurants. Kortom: een gezellige, levendige wijk! De ligging is met 10 fietsminuten vanaf het stadscentrum en Centraal Station zeer gunstig te noemen. Daarnaast ben je met de auto binnen enkele minuten op directe uitvalswegen richting de Ring of Rotterdam-Zuid via de Maastunnel.

I N D E L I N G
Begane grond
Portiek met brievenbussen, trap naar bergingen.

1e verdieping
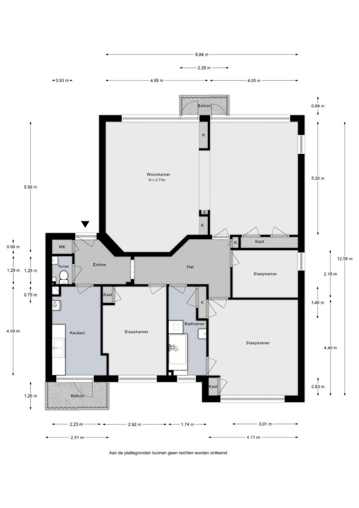
Entree/hal met meterkast en separaat toilet. Doorgebroken woonkamer aan de voorzijde met toegang tot eerste balkon. Drietal slaapkamers. Dichte keuken met toegang tot tweede balkon. Badkamer met ligbad en wastafel.

Zie de bijgevoegde plattegronden voor de maatvoering van dit ruime appartement.

B I J Z O N D E R H E D E N
• Bouwjaar 1937;
• Woonoppervlakte: ca. 122 m² (conform NEN2580);
• Energielabel B;
• Oplevering per direct;
• VvE heeft een maandelijkse bijdrage van € 214,90;
• Voorzien van kunststof kozijnen met dubbele beglazing;
• Verwarming en warm water middels cv ketel;
• Ouderdoms- en niet bewonersclausule van toepassing;
• Het appartement is aangewezen als beschermd stadsgezicht;
• Er is een projectnotaris van toepassing;
• Er is geen vragenlijst en lijst van zaken beschikbaar (wegens verkoop door belegger);
• Woning is gelegen op eigen grond.

D I S C L A I M E R
De Meetinstructie is gebaseerd op de NEN2580. De Meetinstructie is bedoeld om een meer eenduidige manier van meten toe te passen voor het geven van een indicatie van de gebruiksoppervlakte. De Meetinstructie sluit verschillen in meetuitkomsten niet volledig uit, door bijvoorbeeld interpretatieverschillen, afrondingen of beperkingen bij het uitvoeren van de meting.

Woonvisie Makelaars is de makelaar van de verkoper. Wij adviseren u uw eigen makelaar in te schakelen om uw belangen te behartigen bij de aankoop van dit object. Alle verstrekte informatie moet beschouwd worden als een uitnodiging tot het doen van een bod of om in onderhandeling te treden. Er kunnen geen rechten worden ontleend aan deze woninginformatie.

Bezichtiging inplannen

Kenmerken

Status
Verkocht

Bouwjaar
1937
Soort
Tussenverdieping
Kenmerk
Appartement
Woonlaag
2
Aantal woonlagen
1
Aantal kamers
4
Aantal slaapkamers
3

Soorten verwarming
CV ketel
CV ketel combiketel
Nee
Soorten warm water
CV ketel
Energieklasse
B
Energielabel einddatum
8 december 2032

Woonoppervlakte
122 m2
Inhoud
414 m3
Buitenruimtes gebouwgebonden of vrijstaand
6 m2

Aantal kamers
4
Aantal slaapkamers
3

Tuintypen
Geen tuin

Plattegronden

new_image

Enthousiast over deze woning?

Bij Woonvisie Makelaars is het mogelijk om je bezichtiging zelf in te plannen!
Bezichtiging inplannen