Mathenesserlaan 351A

Rotterdam

Koopprijs
€ 350.000,- k.k.

Omschrijving

Sfeervol en authentiek wonen aan de chique Mathenesserlaan!

Wonen op stand, in een historisch pand vol karakter? Dit prachtige drie kamer appartement op de eerste etage van een statig herenhuis uit 1907 biedt een unieke combinatie van klassieke grandeur en modern wooncomfort. Gelegen aan de chique Mathenesserlaan, een brede en lommerrijke laan die bekendstaat om haar indrukwekkende historische panden en statige uitstraling. Hier ervaart u de rust van een sfeervolle woonomgeving, met de bruisende binnenstad van Rotterdam op steenworp afstand. Dit herenhuis is een prachtig voorbeeld van de architectuur uit het begin van de 20e eeuw, gekenmerkt door fraaie gevelelementen, sierlijke balkons en een statige entree. De Mathenesserlaan zelf is historisch verweven met de ontwikkeling van Rotterdam en biedt een imposant straatbeeld met panden die gebouwd zijn in de overgangsperiode tussen het eclecticisme en de Jugendstil.

Bij binnenkomst in het appartement wordt u direct betoverd door de grandeur van weleer. De hoge plafonds, nog deels gedecoreerd met originele ornamenten, ademen elegantie en ruimte. De paneeldeuren, marmeren schouwen en glas-in-loodramen versterken het authentieke karakter en zorgen voor een warme, klassieke sfeer. De ruime woonkamer en-suite biedt een prachtige lichtinval dankzij de grote ramen en openslaande deuren naar het voorgelegen balkon. De fraaie moderne keuken biedt een eigentijds contrast met de klassieke elementen van de woning. Ook de badkamer is stijlvol en modern afgewerkt, met luxe sanitair en een verfijnde uitstraling.

Gelegen in een van de meest gewilde wijken van Rotterdam, combineert deze woning historische charme met stedelijk gemak. Op loopafstand vindt u diverse hippe eetgelegenheden, boetieks en culturele hotspots. De openbaar vervoersverbindingen zijn uitstekend en met de fiets bent u binnen enkele minuten in het centrum van de stad.

P L U S P U N T E N
+ Originele details zoals ornamentenplafonds, schouwen, glas-in-lood en paneeldeuren
+ Onderdeel van een fraai pand op een geweldige locatie
+ Balkon met uitzicht op de Mathenesserlaan en het Heemraadsplein
+ Gelegen in een historische en geliefde wijk met alle voorzieningen nabij

L O C A T I E
Van een oude polder met weilanden naar een zeer populaire stadswijk. Het Oude Westen/Middelland heeft statige huizen aan mooie lanen en singels, maar ook woningen in rustige achterliggende straatjes. Wat deze wijk zo populair maakt is de diversiteit aan nationaliteiten wat zorgt voor een grote variatie op zowel cultureel- als culinair gebied. Zo is er op elke hoek van de straat wel een lekkere exotische maaltijd en een goede kop koffie te scoren. Op de bekende winkelstraten Oude Binnenweg en Nieuwe Binnenweg vestigen zich steeds meer trendy winkels en restaurants. Kortom: een gezellige, levendige wijk! De ligging is met 10 fietsminuten vanaf het stadscentrum en Centraal Station zeer gunstig te noemen. Daarnaast ben je met de auto binnen enkele minuten op directe uitvalswegen richting de Ring of Rotterdam-Zuid via de Maastunnel.

I N D E L I N G
Begane grond
Gezamenlijke entree en trappenhuis

1e verdieping
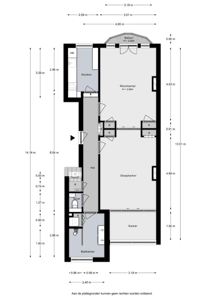
Entree, ruime hal, met toilet en vaste kasten. Keuken met nette opstelling aan de voorzijde en badkamer met inloopdouche en dubbele wastafel aan de achterzijde. De woonkamer is gelegen aan de fraaie lommerrijke voorzijde en biedt middels openslaande deuren toegang tot het voorgelegen balkon. Middels een ensuite toegang tot de slaapkamer en de werkruimte annex logeerkamer aan de achterzijde.

Zie de bijgevoegde plattegronden voor de maatvoering van dit ruime appartement.

B I J Z O N D E R H E D E N
• Bouwjaar 1907;
• Woonoppervlakte: ca. 75 m² (conform NEN2580);
• Inhoud ca. 279 m³;
• Energielabel D;
• Oplevering in overleg;
• De VvE is in oprichting, de maandelijkse bijdrage bedraagt circa € 138,-;
• De woning heeft een eigen elektrameter en een gezamenlijke gas-, water-, verwarming- en internetvoorziening;
• Verwarming en warm water middels gezamenlijk verwarmingssysteem;
• Ouderdoms- en niet bewonersclausule van toepassing;
• Het appartement is aangewezen als beschermd stadsgezicht;
• Er is een projectnotaris van toepassing;
• Er is geen vragenlijst en lijst van zaken beschikbaar (wegens verkoop door belegger);
• Woning is gelegen op eigen grond.

D I S C L A I M E R
De Meetinstructie is gebaseerd op de NEN2580. De Meetinstructie is bedoeld om een meer eenduidige manier van meten toe te passen voor het geven van een indicatie van de gebruiksoppervlakte. De Meetinstructie sluit verschillen in meetuitkomsten niet volledig uit, door bijvoorbeeld interpretatieverschillen, afrondingen of beperkingen bij het uitvoeren van de meting.

Woonvisie Makelaars is de makelaar van de verkoper. Wij adviseren u uw eigen makelaar in te schakelen om uw belangen te behartigen bij de aankoop van dit object. Alle verstrekte informatie moet beschouwd worden als een uitnodiging tot het doen van een bod of om in onderhandeling te treden. Er kunnen geen rechten worden ontleend aan deze woninginformatie.

Bezichtiging inplannen

Kenmerken

Status
Verkocht

Bouwjaar
1907
Soort
Bovenwoning
Kenmerk
Appartement
Woonlaag
1
Aantal woonlagen
1
Aantal kamers
3
Aantal slaapkamers
1

Soorten verwarming
Blokverwarming
CV ketel combiketel
Nee
Soorten warm water
Centrale voorziening
Energieklasse
D
Energielabel einddatum
17 juni 2035

Woonoppervlakte
75 m2
Perceel oppervlakte
150 m2
Inhoud
279 m3
Buitenruimtes gebouwgebonden of vrijstaand
2 m2

Aantal kamers
3
Aantal slaapkamers
1

Tuintypen
Geen tuin

Plattegronden

new_image

Enthousiast over deze woning?

Bij Woonvisie Makelaars is het mogelijk om je bezichtiging zelf in te plannen!
Bezichtiging inplannen